| Numer oferty | 526/8967/ODS |
|---|---|
| Cena | 420 000,00 PLN |
| Rodzaj nieruchomości | Dom |
| Typ oferty | Sprzedaż |
| Region | Lubuskie |
| Kraj | Polska |
| Miejscowość | Białcz |
| Dzielnica | |
| Powierzchnia | 131,82m² |
| Działka | 1 700,00m² |
| Liczba pokoi | 4 |
| Piętro | 0 |
| Liczba kondygnacji | 0 |
Funkcjonalny dom parterowy,
wybudowany wg projektu SERAFIN 2 w miejscowości Białcz gm. Witnica.
Przyjemna parterówka, ustawiona idealnie względem stron świata, czyli taras na południe!
Z garażem w bryle budynku. Poddasze nieużytkowe.
Dom oferowany do sprzedaży w stanie surowym otwartym.
Wybudowany z czerwonej cegły ROBEN, dach kryty dachówką ceramiczną, stropy drewniany.
Prace do wykonania:
posadzki i ścianki działowe będą wykonane pod docelowego klienta w cenie.
Działka 17 arów, płaska, łatwa do zagospodarowania.
Sąsiedztwo podobnych nowych domów jednorodzinnych w oddaleniu od głównej drogi
tworzy atmosferę małego bezpiecznego osiedla.
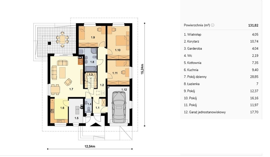
Powierzchnia całkowita 131,82m2
1. Wiatrołap 4,05 m2
2. Korytarz 10,74m2
3. Garderoba 4,04m2
4. Wc 2,19m2
5. Kotłownia 7,35m2
6. Kuchnia 9,40 m2
7. Pokój dzienny 28,85m2
8. Łazienka 7m2
9. Pokój 12,37 m2
10. Pokój 16,16 m2
11. Pokój 11,97 m2
12. Garaż jednostanowiskowy 17,70 m2
Media: energia.
ISTNIEJE MOŻLIWOŚĆ POMOCY W ZAKOŃCZENIIU BUDOWY.
POLECAM
Opis oferty sporządzony na podstawie oględzin nieruchomości oraz informacji uzyskanych od właściciela, może podlegać aktualizacji i nie stanowi oferty określonej w art. 66 i następnych K.C.
Przy zakupie nieruchomości do ceny należy doliczyć kwotę podatku od czynności cywilno prawnych, koszt taksy notarialnej oraz koszt obsługi transakcji przez biuro nieruchomości. Prezentacja nieruchomości jest bezpłatna i następuje przy udziale agenta nieruchomości. Wiąże się to z obowiązkiem podania swoich danych osobowych, a także wyrażeniem pisemnej zgody na wykonanie usługi pośrednictwa w zakupie lub najmie nieruchomości.
Szczegółowych informacji udzielamy w biurze.
Powyższa oferta ma charakter informacyjny oraz stanowi zaproszenie do rokowań zgodnie z art. 71 KC. Oferta nie stanowi oferty określonej w art. 66 i następnych KC.