+48 781 665 454

Firma Łuc - Nieruchomości Gorzów Wielkopolski


Mieszkanie z ogródkiem - doskonałe położenie

Mieszkanie z ogródkiem - doskonałe położenie
Numer oferty 2559/2562/OMS
Cena 808 920,00 PLN POLECANE
Rodzaj nieruchomości Mieszkanie
Typ oferty Sprzedaż
Region Lubuskie
Kraj Polska
Miejscowość Gorzów Wielkopolski
Dzielnica
Powierzchnia 87,81m²
Liczba pokoi 4
Piętro 0
Liczba kondygnacji 1

Opis oferty:

Oferta bezpośrednia - bez kosztów obsługi biura i bez podatku PCC 2 %

Na sprzedaż mieszkania dwupoziomowe znajdujące się w budynku dwulokalowym, położonym w doskonałej lokalizacji w centrum miasta - ul. Jastrzębia.
Lokalizacja zapewnia ciszę, spokój oraz bajeczne widoki na rozlewiska Warty, z jednoczesnym szybkim dostępem do centrum miasta, zaledwie w 5 minut piechotą.

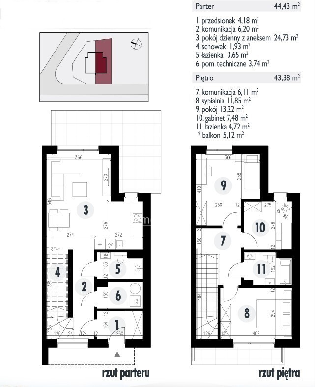
Lokale o powierzchni użytkowej 87,81m2 składają się z dwóch poziomów:
- na parterze znajduje się przedsionek z miejscem na szafę w zabudowie, komunikacja, salon z aneksem kuchennym, łazienka oraz pomieszczenie techniczne. Pod schodami można utworzyć dodatkowy schowek.
- na piętrze znajdują się 2 duże sypialnie, gabinet, łazienka oraz komunikacja. Z jednej z sypialni wyjście na balkon z bardzo przyjemnym widokiem na okolicę.

Dla lokali przewidziano ogródki o powierzchniach 248,50 m2 oraz 228,5 m2,które z pewnością pomieszczą wiaty garażowe typu carport oraz zapewnią miejsce do wypoczynku.

Lokale zostaną oddane w stanie deweloperskim już w czerwcu 2026r., ale lokale można obejrzeć i zarezerwować już dziś.
W standardzie lokale zostaną wyposażone w: stalowe balustrady na balkonach, rozprowadzone instalacje elektryczną, grzewczą (ogrzewanie podłogowe) i wodno-kanalizacyjną, pompy ciepła, aluminiową stolarkę okienną firmy Constans wraz z elektrycznymi roletami zewnętrznymi, parapety zewnętrzne granitowe oraz drzwi wejściowe antywłamaniowe.

Media: lokale bezczynszowe, woda i kanalizacja z sieci miejskiej. Ogrzewanie - pompa ciepła.

Niewątpliwym atutem mieszkań jest ich lokalizacja oraz wysoki standard wykończenia.
Serdecznie zapraszam na prezentację!



Powyższa oferta ma charakter informacyjny oraz stanowi zaproszenie do rokowań zgodnie z art. 71 KC. Oferta nie stanowi oferty określonej w art. 66 i następnych KC.

Wszelkie prawa autorskie zastrzeżone. Właścicielem oferty jest Firma Łuc.

Powyższa oferta ma charakter informacyjny oraz stanowi zaproszenie do rokowań zgodnie z art. 71 KC. Oferta nie stanowi oferty określonej w art. 66 i następnych KC.

Kontakt:

Masz pytania? Skontaktuj się z nami.